Mieszkanie na sprzedaż Kielce

3 pokoje
47.70 m²
9 119,50 zł/m2
wysoki parter piętro
BLN-MS-81

435 000 zł

Mieszkanie na sprzedaż
Oferta na wyłączność

Szczegóły oferty

Symbol oferty BLN-MS-81
Powierzchnia 47,70 m²
Powierzchnia użytkowa [m2] 47,70 m²
Liczba pokoi 3
Liczba sypialni 3
Rodzaj budynku blok
Technologia budowlana beton
Standard
Opłaty w czynszu Części wspólne, fundusz remontowy, gaz, ogrzewanie, Winda
Opłaty wg liczników prąd, woda
Piętro wysoki parter
Liczba pięter w budynku 10
Stan lokalu do wprowadzenia
Mies. czynsz admin. 590 PLN
Okna PCV
Instalacje dobre
Balkon jest
Liczba balkonów 1
Rok budowy 1979
Plac zabaw tak
Widok na podwórko
Gaz brak
Woda ciepła - miejska
Dojazd ASFALTOWA
Otoczenie osiedle
Ogrzewanie C.O. miejskie
Umeblowanie pełne
Odl. do sklepu [m] 350 m
Odl. do szkoły [m] 300 m
Winda tak
Liczba wind 1
Usytuowanie dwustronne
piwnica tak, 2,00 m²
Pomieszczenia
Typ kuchni aneks kuchenny połączony z jadalnią i salonem
Rodzaj kuchni widna
Typ łazienki razem z wc
Liczba łazienek 1
Liczba przedpokoi 1
Anna Wajnberger-Bednarz

Anna Wajnberger-Bednarz

Manager/ Właściciel

Napisz wiadomość 21 Ofert

Opis nieruchomości

Nie przegap naszej oferty sprzedaży pięknego mieszkania przy ul. Orkana

Wyjątkowa oferta trzypokojowego mieszkania w Kielcach!

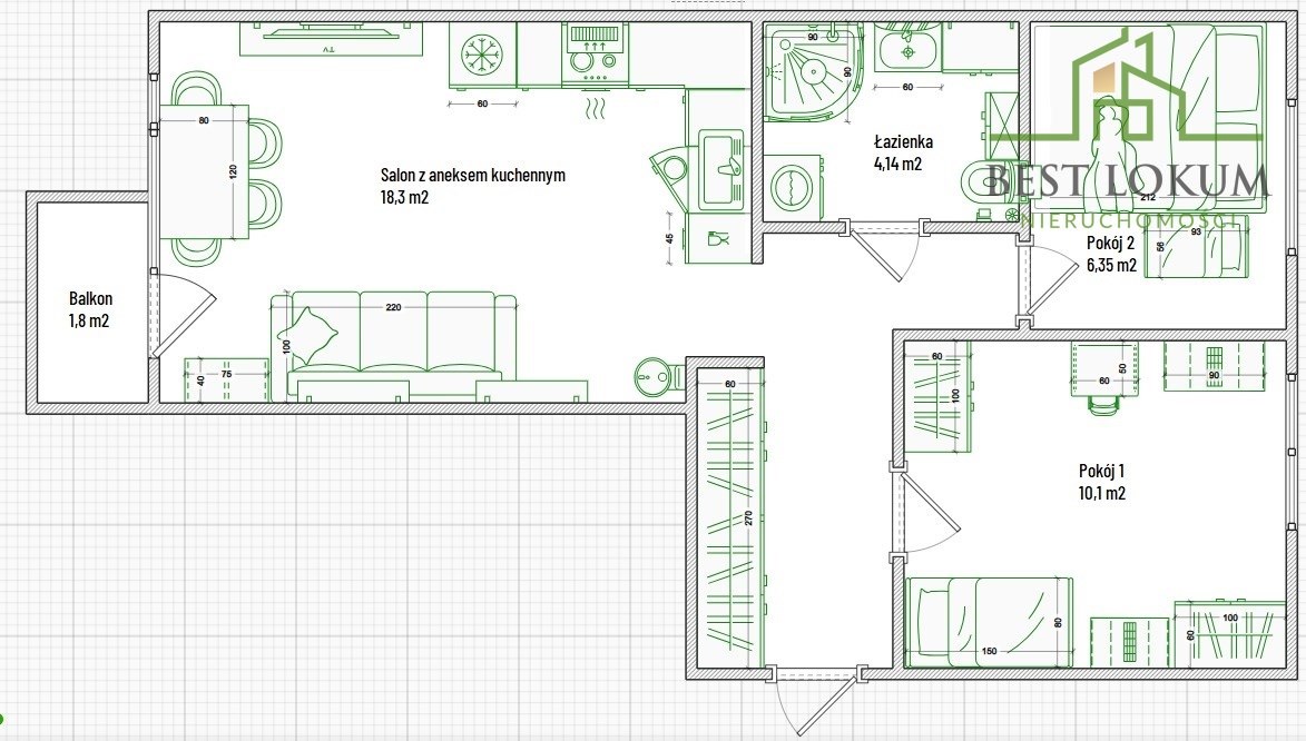
Tylko w biurze Best Lokum na sprzedaż ustawne i funkcjonalne mieszkanie o powierzchni 47,7 m2 usytuowane na parterze na ul. Orkana (os. Uroczysko) w pobliżu zalewu Kieleckiego.

Mieszkanie zadbane, środkowe, ciepłe (coroczne zwroty za ogrzewanie), gotowe do zamieszkania.

Widok z salonu na tereny zielone i nowo wybudowany, duży plac zabaw.

Pod blokiem dużo bezpłatnych miejsc parkingowych.

Założona księga wieczysta, wyrobiony aktualny operat szacunkowy oraz świadectwo energetyczne.

Ogrzewanie i woda z sieci miejskiej!

Generalny remont mieszkania został przeprowadzony w połowie 2023 r.

W 2024r. wymiana całej stolarki okiennej na nową 3-szybową, niskoemisyjną (K=0,5), ciepła ramka, okucia antywłamaniowe.

Rozkład pomieszczeń

- Salon z wyposażonym aneksem kuchennym (lodówka, piekarnik, płyta indukcyjna, zmywarka), cichy domyk - 18,3 m2

- Duża łazienka z pojemnymi szafkami w zabudowie (okucia Blum) - 4,14 m2

- Pokój 1 - 10,1 m2

- Pokój 2 - 6,35 m2

- Przedpokój z praktyczną szafą w zabudowie wykonaną przez stolarza (okucia Blum)

Do mieszkania przynależy również komórka w piwnicy - ok 1,5 m2.

W najbliższej okolicy

- Plac zabaw pod blokiem

- Poczta 250m

- Sklep spożywczy 350m

- Przystanek autobusowy 350m

- Paczkomat InPost, DPD 350m

- Przychodnia 750m

- Kościół 1km

- Przedszkole samorządowe nr 9, nr 35

- Żłobek samorządowy nr 15

- Szkoła podstawowa nr 27

Cena 435 000 zł.

Serdecznie zapraszam do oglądania

Anna Wajnberger-Bednarz
Best Lokum Nieruchomości

tel. 508-495-444

E-mail: biuro@bestlokum.pl
www: bestlokum.pl

Lokalizacja nieruchomości

Kalkulatory

Kalkulator kosztów

Podatek od czynności cywilno-prawnych

Taksa notarialna
(opłata notarialna)

Wniosek o wpis do WKW

VAT od prowizji
agencji nieruchomości

Vat od taksy notarialnej
(opłaty notarialnej)

Prowizja agencji nieruchomości

Wypisy aktu notarialnego

Razem

Uwaga: mogą wystąpić dodatkowe opłaty za założenie księgi wieczystej oraz ustanowienie hipoteki.

PLN
PLN
PLN
PLN
PLN
PLN
%
PLN

Podobne oferty

Oferta na wyłączność

Mieszkanie na sprzedaż

kielce

1 pokoj 40 m2 8 050,00 zł/m2
Oferta na wyłączność
Oferta na wyłączność

Mieszkanie na sprzedaż

Kielce

2 pokoje 42 m2 9 261,90 zł/m2
Oferta na wyłączność
Bez prowizji

Mieszkanie na sprzedaż

Kielce

3 pokoje 71 m2 6 605,63 zł/m2
Bez prowizji
Oferta na wyłączność

Mieszkanie na sprzedaż

Kielce

3 pokoje 59 m2 8 412,00 zł/m2
Oferta na wyłączność

Manager/ Właściciel

Proszę wprowadzić poprawne imię i nazwisko
Proszę wprowadzić poprawny numer telefonu
Proszę wprowadzić poprawny adres e-mail
Proszę zaznaczyć wymagane zgody
Rozwiąż równanie:
28 3
Niepoprawny wynik